常州市天辰环保科技有限公司
专注环保设备设计与生产
联系电话:
0519-89888070
网站首页
关于我们
公司简介
企业文化
产品中心
蒸发器系列
废水处理工程
污泥烘干机
提取浓缩设备
新闻中心
工程案例
化工行业
食品行业
农副产品
医药制品
设备选型
干燥设备选型
混合设备选型
制粒设备选型
粉碎设备选型
服务中心
客户服务
联系我们
在线反馈
联系我们
新闻中心
天辰环保-强制循环废水蒸发器
当前位置:
网站首页
>
新闻中心
>
公司新闻
天辰环保-强制循环废水蒸发器
信息来源:本站 | 发布日期: 2021-03-16 | 浏览量:
关键词:废水蒸发器,强制循环废水蒸发器
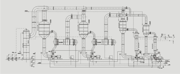
1.强制循环蒸发器简述
强制循环蒸发器是依靠外加力循环泵使液体进行循环。它的加热室有卧式和立式两种结构,液体循环速度大小由泵调节。
强制循环蒸发器可分单效、双效、三效、四效及多效强制循环蒸发器。强制循环蒸发器真空浓缩设备是我公司开发研制的高效节能浓缩设备,
该设备在真空低温条件下运作,具有料液流速快、蒸发快、不易结垢等特性。蒸发器根据分离室循环料液进出口的位置不同,
它又可以分为正循环强制蒸发器及逆循环强制蒸发器,循环料液进口位置在出口位置上部的称为正循环,反之为逆循环。
逆循环强制蒸发器具有更多优点,是依靠外加力——循环泵使液体进行循环。
2.强制循环蒸发器的系统结构组成结构
各效蒸发器、各效分离器、冷凝器、循环泵、效间泵、真空及排水系统、操作平台、
电器仪表控制柜及阀门、管路等系统组成。
3.强制循环蒸发器关键部件说明
1).加热室:换热管是蒸发器^重要的热负荷元件,
直接决定了蒸发器的热效率和使用寿命。
a.蒸汽采用多流道进入加热室,我公司自行设计的特殊装置,有效避免了高速蒸气流对加热管的冲击。
b.蒸发管束在管板上的排列均匀分布,提高蒸汽的热效率。
c.加热室内设置特殊化的装置,有效克服蒸发管的振动并延长蒸汽停留时间有利于传热。
d.可排放加热室内不凝性气体。
2).蒸发分离结晶室:蒸发室为直立筒体,下部为锥形底以利晶浆排出。二次蒸汽由顶部排出,
经除沫器除沫后进入汽液分离器进入冷凝器,蒸发室锥形底部与循环泵连接。
3).除沫器:主要作用是防止蒸发过程中形成之细微液滴,被二次蒸汽夹带逸出。对汽液进行分离,可减少料液的损失,同时防止污染管道及冷却水。
4).强制循环泵:是根据流体在换热管内流动状态、传热效率、以及阻力计算等要求,由我公司工艺人员提出的技术条件而加工的强制循环蒸发专用泵。
4.强制循环蒸发器性能
1).全套系统设计合理美观、运行稳定、高效节能,蒸汽耗量低;浓缩比大,强制循环式,使粘度较大的料液容易流动蒸发,
浓缩时间短;
2).特殊设计经简单操作可实现切换改效,以适应不同产品的生产;
3).蒸发温度低,热量得到充分利用,料液受热温和,适用于热敏性物料的浓缩;
4).蒸发器通过强制循环,在管内受热均匀,传热系数高,可防止“堵管”现象;
5).料液进入分离器再分离,强化了分离效果,使整体设备具有较大的操作弹性;
6).整套设备结构紧凑,占地面积小,布局简单流畅,代表了大型成套蒸发设备的发展方向;
7).连续进出料,料液液位与所需浓度可实现自控;
5. 强制循环蒸发器的适用范围:该蒸发器广泛应用在处理粘性、析出结晶、容易结垢或浓缩程度较高的溶液,
尤其在真空条件下操作时,其适用性很突出。我公司生产的强制循环蒸发器在氯化钠、硫酸铵、硫酸镁、硫酸锌、
硫酸钠、亚硫酸钠、葡萄糖酸钠、氯化钴、古龙酸、硫化碱等物料的蒸发结晶操作中得到广泛应用。 强制循环蒸发器示意图:
转载请注明出处(天辰环保-强制循环废水蒸发器:
/companynews/422
)
上一条:
天辰环保-Na2SO4废水双效强制循环蒸发器
下一条:
天辰环保-电镀含盐废水处理工艺流程
相关文章
2025-04-23
>
天辰环保-三效污水蒸发器后续维护需注意哪些事项
2025-03-17
>
天辰环保-污水蒸发器的特点和应用
2025-03-13
>
天辰环保-污水蒸发器是三效蒸发还是双效蒸发好
2025-03-13
>
天辰环保-污水蒸发器未来发展前景
2025-03-13
>
天辰环保-污水蒸发器遇到堵管问题该如何解决
2024-12-30
>
天辰华环保-污水蒸发器蒸发系统有哪些主要模式
2024-10-29
>
天辰环保-污水蒸发器处理后的工业废水回用率高吗?
2024-10-29
>
天辰环保-蒸汽热源污水蒸发器处理每吨污水的成本计算
2024-05-20
>
天辰环保-MVR废水蒸发器的工作原理
2024-03-29
>
天辰环保-污水蒸发器处理硫酸铵废水的工艺流程
相关产品
电镀废水处理
PN系列夹层浓缩锅
JC系列酒精沉淀罐
双搅拌刮板式反应罐
WZ型外循环式真空蒸发器
真空减压浓缩罐
QN系列球形浓缩器
SMZ系列升膜蒸发器
联系人:薛先生
手机:18921013035
电话:0519-89888070
传真:0519-88909087
Copyright © 2018 常州市天辰环保科技有限公司 [官网]
苏ICP备18037641号
技术支持:
常州网络公司
-江苏东网科技
[管理后台]
Top